Robinet à tournant sphérique 2 pièces inox Split Body ICP avec passage intégral pour le sectionnement de fluides dans les réseaux chimiques et pharmaceutiques, industries pétrochimiques, installations hydrauliques et air comprimé.
Robinet avec certification sécurité feu API 607 permettant de diminuer les risques en cas de feu.
Sièges en PTFE avec 15% de fibre de verre pour une tenue haute température jusqu’à 200°C.
Compatible pour les atmosphères explosives, ATEX Zone 1&21 et Zone 2&22 notamment grâce au système antistatique.
Commande possible par levier inox ou réducteur à volant.
Le robinet peut être commandé par un actionneur monté sur la platine ISO 5211.


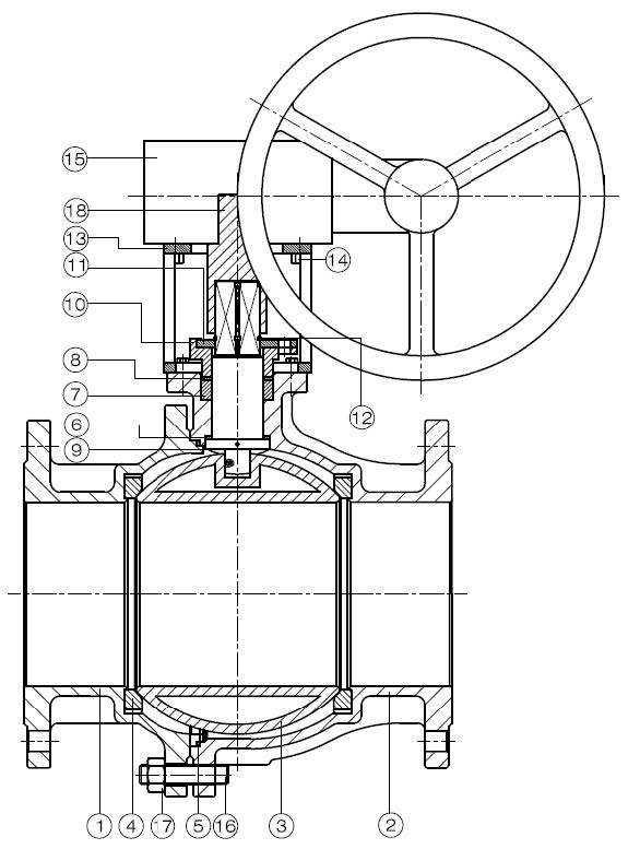
CARACTERISTIQUES :
- Passage intégral
- Axe in-éjectable
- Sièges PTFE avec 15% de fibre de verre
- Poignée cadenassable
- Motorisable ( Platine ISO 5211 )
- Modèle 2 pièces ( Split body )
- A brides R.F. PN40 jusqu’au DN 50, PN16 au-delà
- Système antistatique double
- Sécurité feu API 607
- Trou de dégazage dans la sphère ( au niveau du contact avec l’axe pour éviter une surpression dans la sphère )
UTILISATION :
- Produits chimiques, industries pétrochimiques, installations hydrauliques, chauffage, distribution air, eau
- Températures mini et maxi admissibles Ts : -20°C à + 200°C
- Pression maxi admissible Ps : 40 bars jusqu’au DN50, 16 bars au-delà ( voir courbe )
- Vapeur : 11 bars maximum
COURBE / TEMPERATURE ( Hors Vapeur ) :

COEFFICIENT DE DEBIT Kvs ( en m3 / h ) :

GAMME :
- Robinet à tournant sphérique acier inox à commande par poignée Ref. 763 du DN 15 au DN 200
- Commande possible par réducteur à volant du DN 150 au DN 200
RACCORDEMENT :
- A brides R.F. PN40 jusqu’au DN 50, PN16 au-delà
NOMENCLATURE ROBINETS DN15-50 :


* inclus dans le kit de joints
NOMENCLATURE ROBINETS DN65-100 :


* inclus dans le kit de joints
NOMENCLATURE ROBINETS DN125-200 :


* inclus dans le kit de joints
NOMENCLATURE ROBINETS DN250 :


* inclus dans le kit de joints
NOMENCLATURE ROBINETS DN300 :


* inclus dans le kit de joints
DIMENSION DN15-50 :


DIMENSION DN65-100 :


DIMENSION DN125-200 :


NORMALISATIONS :
- Fabricant certifié ISO 9001:2015
- DIRECTIVE 2014/68/UE : CE N° 0035
- Catégorie de risque III module H
- Certificat 3.1 sur demande
- Conception suivant la norme EN 12516-1
- Tests d’étanchéité suivant API 598, Table 6
- Brides R.F. suivant la norme EN 1092-1 PN16/40
- Platine suivant la norme ISO 5211 et axe suivant la norme EN 15081
- Ecartement suivant la norme EN 558 série 27 ( DIN 3202 F4 jusqu’au DN100, DIN 3202 F5 au-delà )
- ATEX Groupe II Catégorie 2 G/2Dc Zone 1 & 21 Zone 2 &22 ( marquage en option )
- Protection feu suivant API 607 6ème Edition 2010 jusqu’au DN200
- Fonderie certifiée Bureau Veritas Marine & Offshore selon NR320 (BV Marine Reconnaissance Mode II)
Informations données à titre indicatif et sous réserve de modifications éventuelles
TELECHARGEMENT =>
Vanne à boule manuelle INOX bridée PN16/40 type 763 – ICP DIN 3202-1 F4/F5.pdf

