Robinet à tournant sphérique 2 pièces inox Split Body ICP avec passage intégral pour le sectionnement de fluides dans les réseaux chimiques et pharmaceutiques, industries pétrochimiques, installations hydrauliques et air comprimé.
Robinet avec certification sécurité feu ISO 10497 permettant de diminuer les risques en cas de feu.
Certification émissions fugitives suivant norme EN 15848-1 :2006 garantissant une excellente étanchéité à l’axe et prévenant les risques de rejet vers l’extérieur.
Sièges en PTFE pour une tenue haute température jusqu’à 230°C.
Compatible pour les atmosphères explosives, ATEX Zone 1&21 et Zone 2&22 notamment grâce au système antistatique.
Commande possible par levier inox ou réducteur à volant.
Le robinet peut être commandé par un actionneur monté sur la platine ISO 5211.

CARACTERISTIQUES :
- Passage intégral
- Axe in-éjectable
- Sièges PTFE
- Poignée cadenassable
- Motorisable ( Platine ISO 5211 )
- Modèle 2 pièces ( Split body )
- A brides R.F. PN40 jusqu’au DN 50, PN16 au-delà
- Système antistatique
- Sécurité feu ISO 10497 : 2004
- Émissions fugitives EN 15848-1 : 2006
- Étanchéité de l’axe par presse étoupe Graphite + joint torique FKM
- Trou de dégazage dans la sphère ( au niveau du contact avec l’axe pour éviter une surpression dans la sphère )
UTILISATION :
- Produits chimiques, industries pétrochimiques, installations hydrauliques, chauffage, distribution air, eau
- Températures mini et maxi admissibles Ts : -50°C à + 230°C
- Pression maxi admissible Ps : 40 bars jusqu’au DN50, 16 bars au-delà ( voir courbe )
- Tenue au vide 10-² torr
- Air comprimé à température ambiante : 8 bars maximum
- Vapeur : 12 bars maximum
COURBE / TEMPERATURE ( Hors Vapeur ) :

COEFFICIENT DE DEBIT Kvs ( en m3 / h ) :

COUPLES DE MANOEUVRE ( en Nm sans coefficient de sécurité ) :

GAMME :
- Robinet à tournant sphérique acier inox à commande par poignée Ref. 753 du DN 15 au DN 200
- Commande possible par réducteur à volant Ref. 9830221-9830222 et 9830266-267 du DN 100 au DN 200
- Commande possible par poignée inox ASTM A351 CF8M Ref. 9812090-9812097 du DN 15 au DN 200
RACCORDEMENT :
- A brides R.F. PN40 jusqu’au DN 50, PN16 au-delà
NOMENCLATURE ROBINETS :


NOMENCLATURE REDUCTEUR :


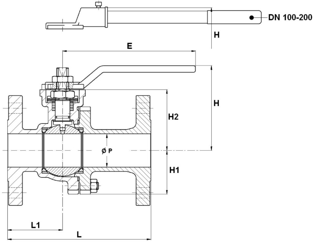
DIMENSIONS ROBINETS ( en mm ) :


DIMENSIONS PLATINE ISO ET AXE ( en mm ) :


DIMENSIONS BRIDES ( en mm ) :


DIMENSIONS REDUCTEURS DN100-200 ( en mm ) :


DIMENSIONS POIGNEES INOX ( en mm ) :



NORMALISATIONS :
- Fabricant certifié ISO 9001:2015
- DIRECTIVE 2014/68/UE : CE N° 0035
- Catégorie de risque III module H
- Certificat 3.1 sur demande
- Conception suivant la norme EN 1983 – ISO 17292
- Tests d’étanchéité suivant la norme EN 12266-1, Taux A
- Marquage suivant la norme EN 19
- Sécurité feu suivant la norme ISO 10497 : 2004
- Emissions fugitives suivant la norme EN 15848-1 : 2006
- Brides R.F. suivant la norme EN 1092-1 PN16/40
- Platine suivant la norme ISO 5211 et axe suivant la norme EN 15081
- Ecartement suivant la norme EN 558 série 27 ( DIN 3202 F4 jusqu’au DN100, DIN 3202 F5 au-delà )
- ATEX Groupe II Catégorie 2 G/2Dc Zone 1 & 21 Zone 2 &22 ( marquage en option ) suivant la directive2014/34/UE
Informations données à titre indicatif et sous réserve de modifications éventuelles
TELECHARGEMENT =>
Vanne à boule manuelle INOX bridée PN16/40 type 753 – ICP DIN 3202 F4/F5.pdf



